我公司曾為某化工廠設計了一套醋酸仲丁酯生產裝置。由工藝需要,裝置內設置一臺起到脫碳作用的鈦材高塔設備,塔內分多段布置填料和浮閥塔盤,物料從塔體下部進入,在塔體內部進行傳質和傳熱,塔內介質復雜,腐蝕性強,存多種有毒物質和爆炸危險介質,工作溫度高、工作壓力高、工況復雜、塔體高且高徑比大,是該生產裝置中的核心設備,也是高危設備。
1、設計參數與選材
1.1設計參數見表1。

1.2選材
該塔器內部存在多種復雜的介質環境,其中醋酸仲丁酯和醋酸對于不銹鋼材料有較強腐蝕作用,而工業純鈦對于醋酸仲丁酯和醋酸有較好的耐蝕性,且材料密度小、機械強度大,故比強度高。從主材的經濟性、實用性、安全性和可靠性等方面綜合考慮,工業純鈦中的TA2具備良好的綜合力學性能和工藝性能,能較好滿足本工況下對機械強度和腐蝕要求,所以本塔器設備筒體、封頭、接管等主材選擇工業純鈦TA2,工業純鈦的使用狀態為退火狀態,厚度δ>25mm板材逐張超聲檢測,試驗方法按GB/T5193-2020《鈦及鈦合金加工產品超聲檢驗方法》中A級合格。鈦材價格貴,為經濟合理地使用鈦材,在不與腐蝕介質接觸的部位,盡量考慮不用鈦制零件,本塔器裙座過渡段的連接法蘭尺寸大,厚度厚、質量重、若采用純鈦結構,在經濟上極不合理,本設備針對性地設計了TA2+16MnⅡ鍛件的鋼制活套法蘭結構,在達到經濟效果的同時,結構強度得到加強。同時,由于鈦與鋼之間的連接需采用機械方法,若某些節點設計困難或使節點結構復雜化時,應根據材料費用、制造費用和工期要求等綜合考慮,必要時仍選用全鈦材,如本塔器上的起重吊耳結構小,重量不大,故設計了TA2全鈦材結構的吊耳。
2、強度計算與結構設計
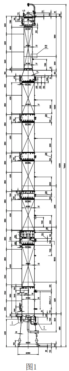
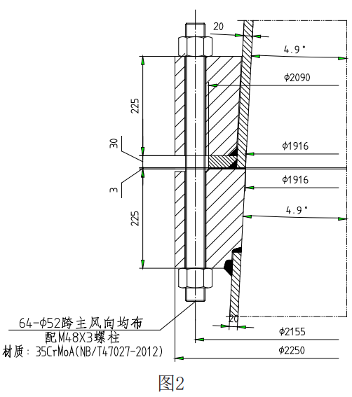
2.1強度計算脫碳塔外形尺寸如圖1所示。以GB150.1~150.4-2011《壓力容器》、JB/T4745-2002《鈦制焊接容器》和NB/T47041-2014《塔式容器》為強度計算依據,對設備筒體、裙座、封頭、設備法蘭和開孔補強等進行計算,進而確定各個部件的厚度。2.2結構設計2.2.1裙座設計本塔器類別為自支撐立式金屬制高塔式容器,整體高度超過50米,塔體直徑最大處為φ1800mm,最小處φ為1200mm,整體高徑比約為27,設備整體載荷大、彎矩大、塔身撓度大,設計圓錐形裙座可以減小混凝土基礎頂面的壓應力,增加裙座筒體斷面慣性矩,結合現場實際布置條件,設計4.9°半錐頂角裙座,滿足小于15°結構適用的要求且通過計算驗證。裙座材料不與介質接觸,且承受了整個塔設備最大的彎矩載荷,設計選用價格相對低、強度好、塑性和焊接性能良好的低合金鋼Q345R,由于塔體下封頭與裙座殼所用金屬材料不同,裙座筒體上部設置一段與塔釜封頭材料TA2相同的鈦鋼筒體作過渡段,在全鈦設備上,若鐵等其他金屬溶于鈦焊縫中,則會形成硬而脆的金屬間化合物,極大地降低焊縫塑性,除爆炸焊接和釬焊外,鈦不能直接熔焊在鋼上,故鈦材設備的支承結構設計有其本身的特殊性,本塔器在裙座過渡段與下部Q345R筒體的連接處上,設計了一套鋼制活套法蘭結構,通過模擬活套設備法蘭來計算強度,再結合連接螺栓的尺寸、錐形筒體傾斜角對緊固螺栓時用液壓拉伸器作業空間的影響等因素,最終設計形成了2片直徑φ2250,厚度225mm,總重量約為5噸的設備活套大法蘭組合,如圖2所示。大大節約了鈦材的用量,同時也使高鈦塔器裙座材料的安全性和可靠性增加,保證了經濟效果并滿足使用要求。

2.2.2筒體設計
塔器壁厚是由壓力、溫度、風載荷、地震載荷等綜合影響,由于風或地震載荷引起的彎矩隨塔高自上而下遞增,從等強度及結構設計的合理性考慮,將塔體厚度分為自上而下逐段遞增的筒體段,在同時兼顧保證強度和結構設計的前提下,應結合鋼板標準規格,盡量取鋼板標準寬度的整數倍,從而減少制作加工中廢料的產生量,再結合計算數據,反復調整和試算,最終將塔體劃分為7段,鈦材鋼板厚度從10mm過渡到20mm,經濟效果顯著。

2.2.3人孔設計
本設備的人孔處在一個沒有突然壓力升降和溫度劇烈變化,也沒有載荷頻繁變化相對穩定的環境狀態,設計采用襯層結構,如圖3所示,介質壓力由外殼材料承受,鈦材只承受介質腐蝕,設備內襯鈦比襯其他金屬材料困難得多,襯其他金屬時,可采用直接熔焊法,但襯鈦絕對不允許采用這種方法,因為襯層在設備內焊接時,鈦和外殼材料有互溶的可能,鐵金屬等溶于鈦焊縫中,形成硬而脆的金屬間化合物,嚴重減低焊縫塑性和耐腐蝕性能;鈦襯里設計除了考慮一般襯里設備的特點,如:絕對避免腐蝕介質與外殼材料有任何接觸的可能;外殼上應設置檢漏孔,檢查襯里層的焊縫質量;外殼內表面應磨平、磨光、圓滑過渡等,還應注意嚴格防止其他材料的互溶;鈦襯里在鋼殼上固定不能用塞焊或條焊,可采用爆炸焊接,或者機械固定和釬焊聯合使用。本設備上的人孔法蘭蓋襯層采用機械連接加銀釬焊的做法,如圖4所示,用鈦螺釘把襯層固定在鋼殼上,螺釘擰入后,用氬弧焊將螺釘焊死。注意要考慮熱影響會造成螺釘自身變形,為留有足夠變形空間,所以采用16mm左右的長螺釘固定。再延襯層一周環焊一圈銀釬焊,該設計能有效防止異種金屬污染鈦襯層,又能解決需將鈦襯層牢靠地固定在基材上。脫碳塔上的人孔均由此方案設計,節約了近3噸鈦材消耗。

3、制造、檢驗與驗收要求
本設備根據TSG21-2016《固定式壓力容器安全技術監察規程》和GB/T150.1~150.4-2011《壓力容器》對設備制造、檢驗與驗收提出了相應要求。設備施焊前,鈦材焊接接頭的焊接工藝評定滿足JB/T4745-2002附錄B的規定,鈦材的焊接規程按JB/T4745-2002附錄E的規定。
對DN≥250mm的接管與接管、接管與管件、接管與法蘭對焊環之間的對接接頭的檢測要求與本設備A類和B類焊接接頭相同。對DN<250mm的接管與接管、接管與管件、接管與法蘭對焊環之間的對接接頭進行需100%滲透(PT)檢測,符合NB/T47013.5-2015中PT-Ⅰ級為合格。吊耳與殼體間的焊接接頭、下封頭與裙座過渡段筒體之間焊接接頭應進行100%滲透(PT)檢測,符合NB/T47013.5-2015中PT-Ⅰ級為合格設備制造完成后,進行水壓試驗,試驗合格后,需進行氣密性試驗,氣密性試驗合格后,設備鈦表面應進行鐵污染試驗和酸洗處理。酸洗后必須用清潔自來水沖洗干凈。
4、結語
目前該設備已投入使用,結構穩定可靠,經濟效益顯著,圖5為該設備裙座實物圖。

參考文獻
[1]GB150.1~150.4-2011,壓力容器[S].
[2]TSG21-2016,固定式壓力容器安全技術監察規程[S].
[3]JB/T4745-2002,鈦制焊接容器[S].
[4]NB/T47041-2014,塔式容器[S].
[5]HG20652-1998,塔器設計技術規定[S].
[6]HG/T20584-2011,鋼制化工容器制造技術要求[S].
相關鏈接